搜索

热门搜索

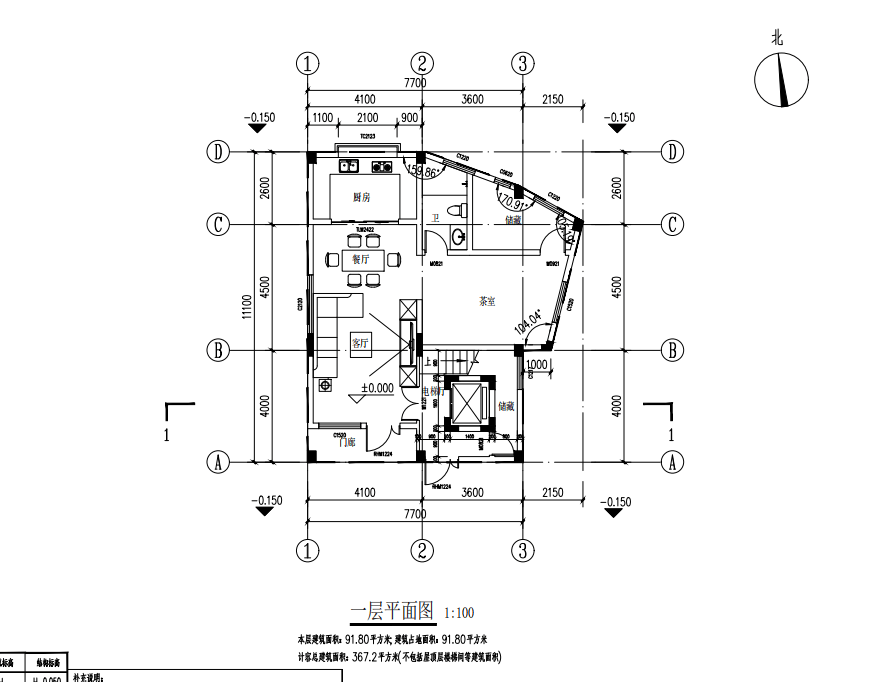
80≤&<100平:面宽7米
创建于:2025-03-11 18:23:07
圈里有谁
最热