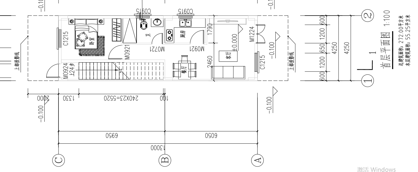
沙田镇 沙田镇报建沙田目前报建量比较少,因为前期验收率太低,沙田特别的地方:1、需要村委会通知村民有资格报建了,才出图纸上报,其他镇是村民直接出图申报,村委会公示资料然后上报审批部门。2、沙田很多需要退缩,退缩后有些就会把面积放到第5层,5层以上建筑是需要第三方审图,审图需要提供地质报告,额外会增加审图和地质报告的成本,这种情况在第一步方案图纸就应该安排审图,不要等第二阶段施工图才安排审图。3、沙田要求出效果图,最好能先发规划部门预审,免得频繁退件。标记采用东莞市农房设计通用图集风格(二)或(四)4、4层总高不超15米5、不计室外高差6、社保,沙田是要求买,很多镇区不要求,但建议买。7、提交《承诺书》原件8、《一户一宅证明》 报建尹生 2025-03-20 0 评论 0 喜欢